SUPERMARKET IN NYC, USA
PROJECT TOOLS:
AUTODESK REVIT, AUTODESK CONSTRUCTION CLOUD, AUTODESK AUTOCAD

Project Gallery
PROJECT OBJECTIVES:
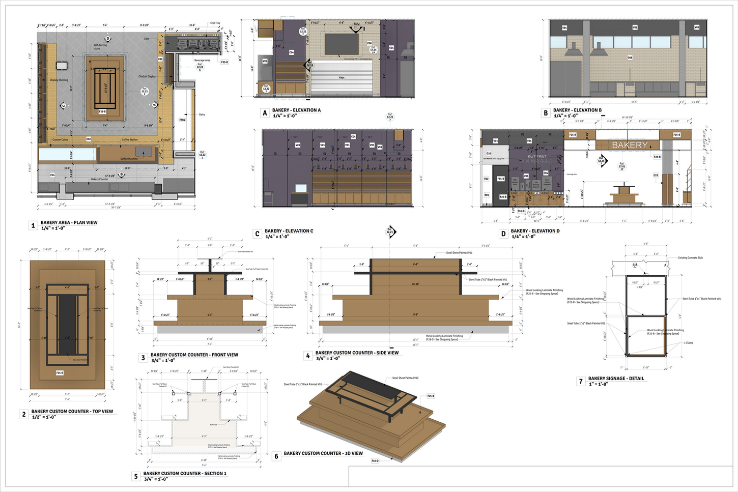
THE PRIMARY OBJECTIVE OF THIS PROJECT WAS TO DEVELOP A COMPREHENSIVE BIM MODEL THAT INCORPORATED ALL INTERIOR DESIGN ELEMENTS OF HIGH-END GROCERY STORE, ALONGSIDE WITH THE DEVELOPMENT OF A DETAILED CONSTRUCTION DOCUMENTATION SET.
PROJECT SOLUTION:
THE MODEL WAS DEVELOPED USING AUTODESK REVIT, WITH METICULOUS INTEGRATION OF EVERY DESIGN COMPONENT. MULTIDISCIPLINARY COORDINATION — ARCHITECTURE STRUCTURE, INTERIOR DESIGN, HVAC, AND ELECTRICAL—ENSURED ACCURACY AND EFFICIENCY. THE MODEL INCLUDED DETAILED ELEMENTS SUCH AS WALL FINISHES, LIGHTING FIXTURES, FLOOR MATERIALS, ELECTRICAL AND PLUMBING FIXTURES, CUSTOM FURNITURE, EQUIMENT. AUTOMATED MATERIAL TAKE-OFFS WERE GENERATED TO SUPPORT PROJECT PLANNING, BUDGETING AND CONSTRUCTION NEEDS. DURING THE CONSTRUCTION PHASE, CONTINUOUS BIM SUPPORT WAS PROVIDED TO ACCOMMODATE SITE ADJUSTMENTS, REVISIONS, CLARIFICATIONS, AND QUANTITY CALCULATIONS.
PROJECT YEAR:
2022 - 2023
PROJECT LOCATION:
NYC, USA
PROJECT STATUS:
COMPLETED
_%D0%A1%D1%82%D1%80%D0%B0%D0%BD%D0%B8%D1%86%D0%B0_03.png)
_%D0%A1%D1%82%D1%80%D0%B0%D0%BD%D0%B8%D1%86%D0%B0_03.png)
























